Mẫu thiết kế nhà 3 tầng 4x11m hiện đại nhất với mái ngói hình chóp
Cấu trúc luôn là một chiều hướng được khả thi nhất trong việc thiết kế nhà đẹp. Nhờ đó mà các khối hình luôn làm chủ tâm nhất cho một cuộc sống tối cao nhất trong cuộc sống.
Nhờ thế mà các mẫu thiết kế nhà 3 tầng đang trở thành xu hướng trọng tâm trong lĩnh vực kiến trúc và xây dựng hiện nay. Từ quan điểm thay đổi trong quá trình xây dựng. Mẫu nhà 3 tầng ngày càng phong phú, đa dạng và tinh tế hơn. Diễn tích 4x11m là một quỹ đất khá eo hẹp cho nên rất nhiều khách hàng có xu hướng thiết kế nhà trước khi xây dựng.
Nhưng diện tích nhỏ cũng không làm khó được đội ngũ kiến trúc sư Pencilhome chúng tôi. Sở dĩ chúng tôi nói thế chính là kiến trúc luôn được điêu luyên từ hệ thống nhà nhỏ nhất đến những công trình đồ sộ.

Luôn được tính toán một cách hợp lý khoa học nhất. Thêm vào đó là nét thẩm mỹ trong thiết kế mang đến cho chủ đầu tư một công trình đẹp khang trang nhất.
Bên cạnh đó chi phí xây dựng lên ngôi nhà cũng phản ánh được quá trình xây dựng. Giúp chủ đầu tư cân đối chi phí xây dựng lên ngôi nhà. Tránh những chi phí phát sinh không đáng kể.
Đó là những lý do mà chúng ta luôn phải hướng đến với mục đích ngôi nhà phải hoàn thiện nhất. Đầy đủ nhất về một cấu trúc cơ bản cho ngôi nhà. Tránh sự rườm rà trong kiến trúc hiện đại mà chúng ta luôn thấy.
Ở mức độ khác mẫu nhà 3 tầng 4x11m cũng đủ cho bạn thấy giá trị thiết kế luôn được nâng tầm một cách đáng kể. Từ vẻ đẹp của nội thất đến nội thất bên trong ngôi nhà. Đánh giá một cách khách quan tối cao nhất cho quá trình xây dựng nhà hoàn chỉnh hơn.
Một không gian sống hiện đại, gần gũi với thiên nhiên chính là điều mà chủ đầu tư mong muốn. Nên các kiến trúc sư của chúng tôi đã đưa ra phương án nhà 3 tầng theo phong cách hiện đại. Tuy mặt tiền 4m nhưng cũng đủ để thiết kế phòng nào ra phòng đó.

Bố trí một cách hợp lý nhất cho ngôi nhà 3 tầng này. Bên cạnh đó kiến trúc sư sẽ sử dụng các yếu tố ánh sáng tự nhiên. Tạo nên một không gian có ánh sáng vừa phải trong cuộc sống . Phần ban công các tầng chúng tôi bố trí nhiều không gian thụt vào 1m theo đúng yêu cầu của chủ nhà.
Ngôi nhà 3 tầng 4x11m nổi bật với vẻ hiện đại, lịch lãm và tinh tế. Các kiến trúc sư đã khéo léo kết hợp màu xám mang lại vẻ tinh khiết, ngọt ngào và ấm áp cho ngôi nhà. Mặt tiền ngôi nhà 3 tầng cũng mang đến một tính thẩm mỹ cao trong quá trình thiết kế.
Với phối cảnh mặt tiền 4m khá đơn giản, ấn tượng nhưng vô cùng cuốn hút từ các nguyên vật liệu hiện đại. Đó là trong những ngôi nhà luôn được đánh giá cao cho một quá trình xây dựng lên chúng.
Nhìn bao quát toàn bộ công trình nhà 3 tầng này chúng ta hoàn toàn có thể nhận ra những điểm nổi bật so với các công trình nhà phố khác. Từ thiết kế tường bao, cửa cổng đều được tính toán một cách tỉ mỉ. Ngoài ra, việc sử dụng các tone màu nâu như thế chính là kết hợp các nguyên vật liệu trang trí mang lại một tổng thể đẹp mắt, hài hòa.

Ở hành lang tầng 2 và 3 cũng là một trong những yếu tố tạo cho ngôi nhà sáng sủa hơn. Sự sang trọng trong thiết kế là một mặt đánh giá cao nhất trong một quá trình xây dựng lên ngôi nhà đẹp. Với hình khối kiên cố của ngôi nhà 3 tầng và sự đơn giản nhưng lại mang đến vẻ đẹp hiện đại. Nhấn mạnh cho sự sang trọng có thể giúp cho gia đình có cuộc sống ổn định.
Đây là mẫu thiết kế nhà 3 tầng có diện tích mặt tiền 4m x11m. Mẫu nhà 3 tầng được thiết kế theo phong cách hiện đại với những đường nét vô cùng giản dị và tối giản. Tuy nhiên, sự khéo léo luôn nhờ đến việc kết hợp các mảng khối hình học một cách ăn ý. Điều này khiến cho mặt tiền nhà 3 tầng đẹp 4m có chiều sâu và chinh phúc mọi ánh nhìn.
Điểm nhấn mạnh của phối cảnh nhà 4×11m 3 tầng này. Điều này sẽ giúp bạn dễ dàng nhận thấy sự bài trí tinh tế với bố cục rõ ràng. Luôn luôn tránh bị chồng chéo phù hợp với những ngôi nhà có diện tích nhỏ. Điểm thu hút của ngôi nhà đẹp 3 tầng chính là chiều sâu của không gian . Điểm cùng với các chi tiết trang trí hiện đại nhất định. Luôn mang đến một sự ấm cúng cần thiết cho sinh hoạt của gia đình.
Với một ý định xây dựng lên một ngôi nhà đẹp và hoàn chỉnh cho một ngôi nhà. Đây là điều bạn không thể ngờ đến nhờ cách bố trí một cách khoa học nhất. Mà điều này sẽ thể hiện ở sự sáng tạo trong thiết kế. Nhằm đẩy mạnh cho một không gian nhà sống động hơn. Bố cục một cách chỉnh chu và hoàn thiện nhất cho chủ đầu tư.
Kèm theo đó sẽ bổ sung đầy đủ vào hệ thống nhà chuyên nghiệp mà chúng tôi luôn quan tâm nhất.

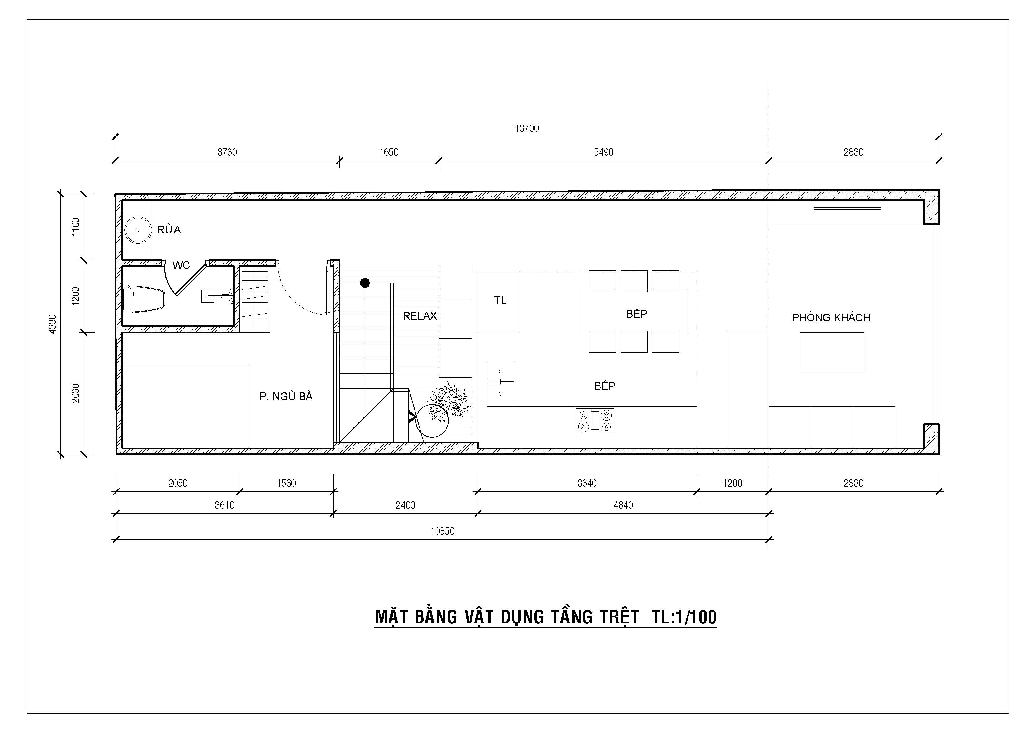
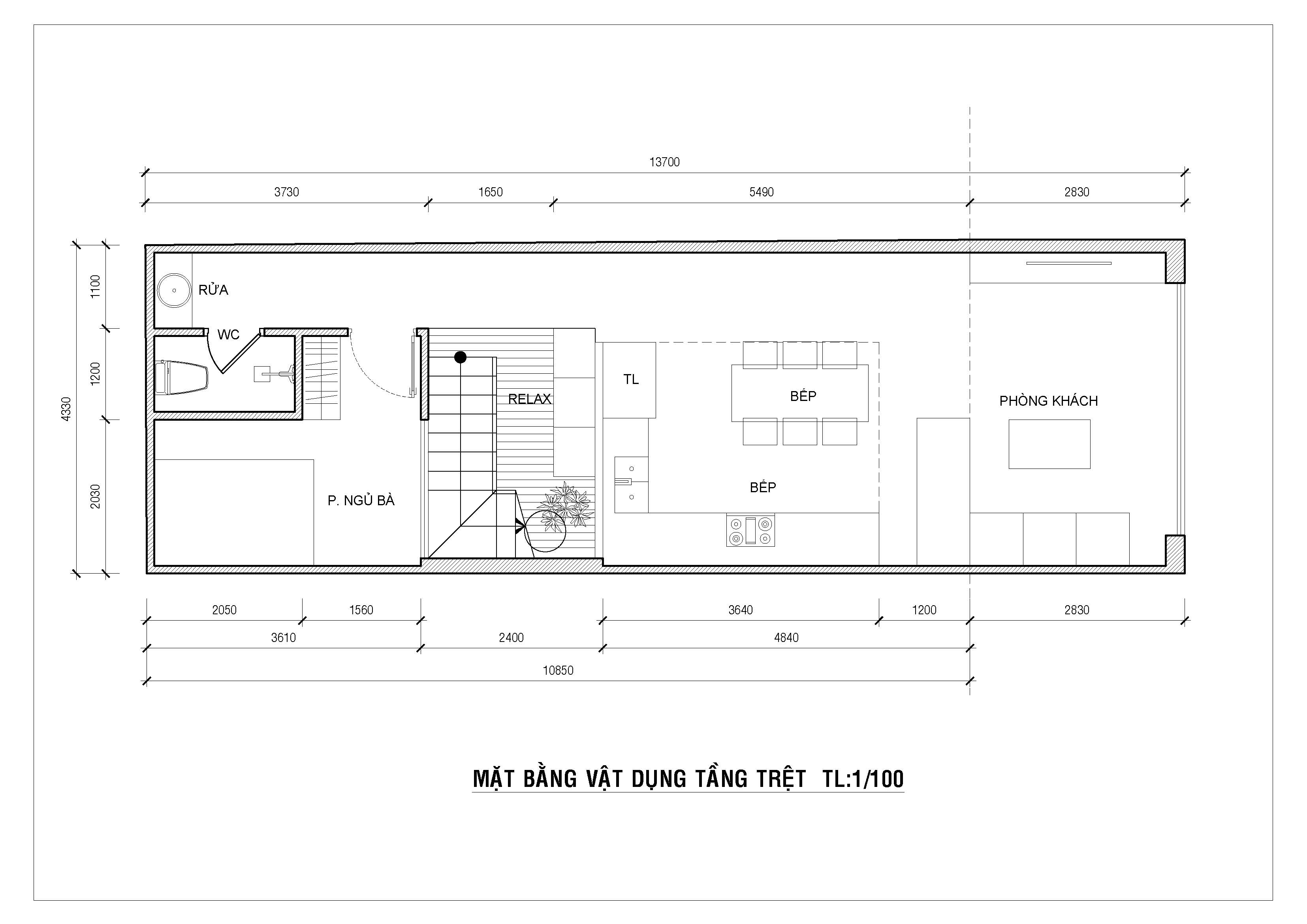
Diện tích đất: 4x14m
Diện tích xây dựng: 4x11
Công năng:
* Tầng trệt: Phòng khách, bếp,ăn, WC chung, phòng ngủ nhỏ
* Lầu 1: 2 phòng ngủ, WC chung
* lầu 2: 2 phòng ngủ, WC chung, giặt phơi.



CÔNG TY TNHH PENCIL HOME
Văn Phòng : 73 Phú Lợi, Phường Phú Lợi, TP Thủ Dầu Một, Tỉnh Bình Dương
Điện thoại: 0973.099.123 - Hotline: 0961.751.752
Email: Pencilhome.art@gmail.com
Website: www.pencilhome.com.vn