Mẫu thiết kế nhà phố 1 trệt 2 lầu 4,5x20m đẹp hiện đại
Kiến trúc của một ngôi nhà luôn thể hiện ở mức độ xây dựng của chúng. Đó là những tâm huyết mà chủ đầu tư thường tìm hiểu kỹ để mang đến cho gia đình một cuộc sống tốt hơn.
Nhà là sự tinh tế trong các cấu trúc xây dựng, đó là những ước mơ hoài bão của chủ đầu tư. Vốn dĩ diện tích đất ai cũng muốn rộng hơn. Nhưng một nền kinh tế như hiện nay sở hữu lô diện tích đất 4,5x20m là cũng đủ để xây dựng lên mẫu nhà 1 trệt 2 lầu rồi.
Thông thường khi diện tích nhà hẹp về chiều rộng, thì sự phát triển chiều cao luôn được kiến trúc sư hướng đến. Mang đến cho gia đình mình một không gian thoải mái nhất. Thể hiện rõ được cuộc sống tốt đẹp nhất mà nhiều gia đình mình cần có.
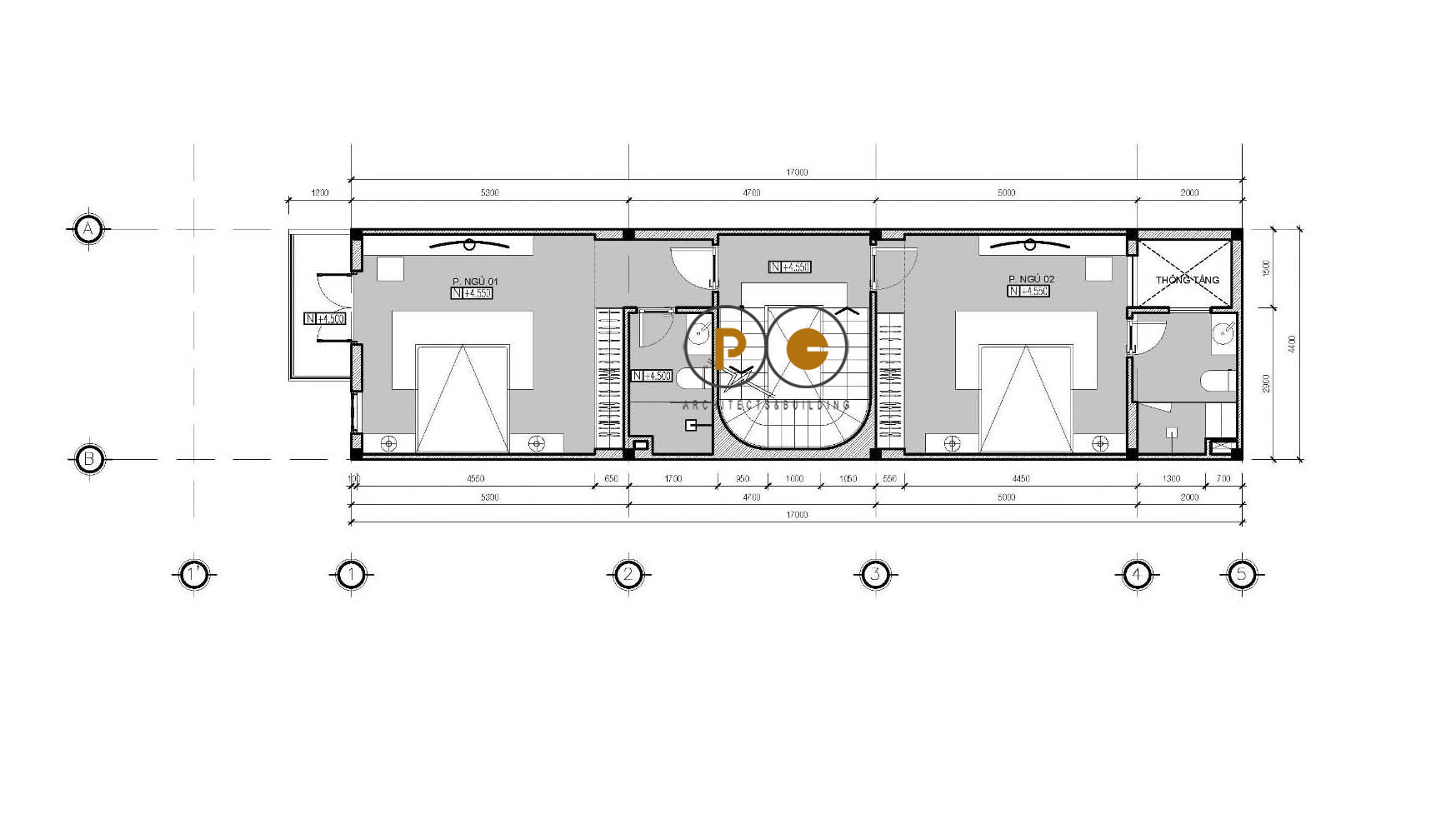
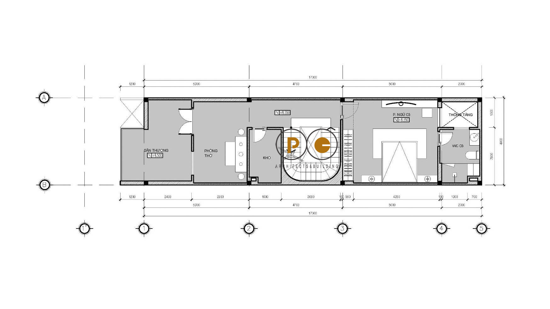
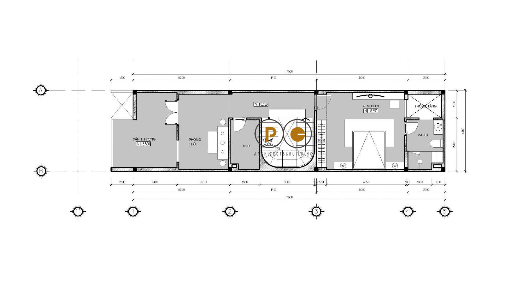
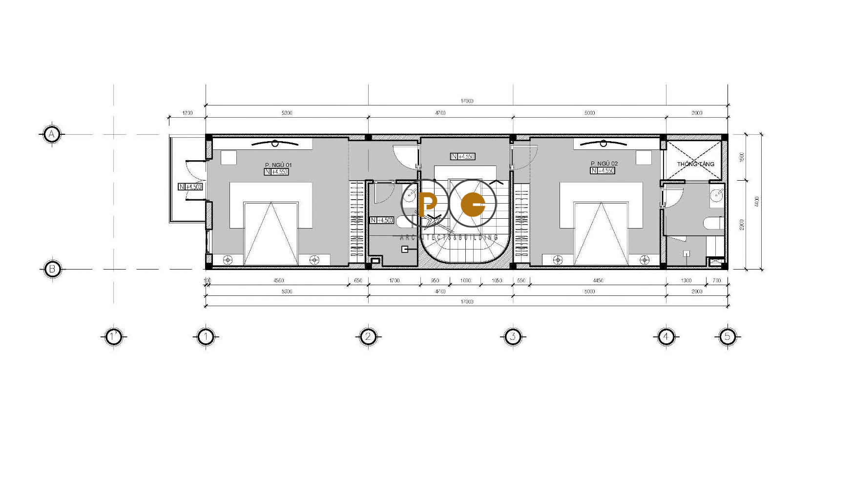
Điều đầu tiên vẫn là hệ thống công năng của ngôi nhà phải hợp lý nhất. Bổ sung cho một quá trình đúc kết để xây dựng lên một ngôi nhà hợp lý và hòa hảo. Cũng như mẫu nhà 1 trệt 2 lầu 4,5x20m dưới đây cũng được xây dựng theo phương hướng phát triên theo chiều cao.Cách thức bố trí luôn được đầy đủ từ những hệ thống công năng nhỏ nhất. Mang đến nét hiện đại riêng mà chủ đầu tư cần.

Hiện đại luôn được sử dụng khối hình chữ nhật khá vuông vắn, nhưng điểm hoa văn luôn là khối hình đơn giản. Nhưng vẫn tạo nét riêng cho ngôi nhà được khang trang hơn. Chính đó là những yếu tố xác thực trong thiết kế để mang đến cho gia đình chủ đầu tư cuộc sống tốt đẹp hơn.
Cách bố trí cũng được xây dựng theo ý tưởng đặc biệt của ngôi nhà. Từ các hệ mặt tiền cho đến một hệ thống riêng biệt của cuộc sống. Mang đến cấu trúc khá đơn giản nhất trong cuộc sống.
Mẫu nhà 1 trệt 2 lầu 4,5x20m cũng toát lên vẻ sang trọng và hiện đại nhờ kết hợp màu nâu socola và màu trắng thuần khiết. Khối đường nét vuông góc hiện đại tạo nét khỏe khoắn cùng sự hài hòa cho ngôi nhà 1 trệt 2 lầu này. Với mặt tiền 4,5m nhưng có chiều dài sâu 20 m nên ngôi nhà được thiết kế bằng cách tận dụng nhiều khoảng không gian trong nhà. Sở dĩ là không gian nơi sinh hoạt và có ban công trồng cây cũng như đón ánh nắng chúng ta có thể quan sát thấy ở tầng 2 và 3.

Một kiến trúc nhà đẹp là sự đánh giá sự tin tưởng của chủ đầu tư. Tạo nên một điểm hiện đại riêng trong cuộc sống. Cũng chính đó là những ưu điểm rõ nhất mà tạo nét giản dị làm điểm sáng cho ngôi nhà.
Để căn nhà 1 trệt 2 lầu trở nên mềm mại không cứng nhắc. Thì đội ngũ Kiến Trúc Sư Pencilhome chúng tôi đã thiết kế các chi tiết làm điểm nhấn như lan can. Được sử dụng khá đơn giản nhưng tiểu cảnh của mặt tiền cũng được độc đáo nhất cho quá trình xây dựng chúng.
Mang nét hiện đại nên ngôi nhà được sử dụng hệ kính làm cửa và những hẹ thống song cửa làm từ sắt mỹ nghệ. Chúng ta cũng thấy rõ được điểm nổi bật của ngôi nhà thông qua sự trẻ trung trong thiết kế. Chính đó là điểm tựa phù hợp nhất cho ngôi nhà hiện đại.
Mẫu nhà 1 trệt 1 lầu cũng đủ tạo ra cho một giá trị thẩm mỹ cao. Kèm theo đó là một hệ thống công năng tốt. Phong thủy phù hợp nhất cho chủ đầu tư. Mang đến ngôi nhà ấm cúng và thân thiện nhất trong cuộc sống. Bởi những kiến trúc hiện đại chính là cấu hình khá tương phẳng để giúp chúng ta hiểu được lối sống hiện đại cho ngôi nhà.

Những điểm nổi bật nhất cũng là những ưu điểm luôn được đánh giá một cách thiết thực mà chủ đầu tư đã chuyển hướng đến cho kiến trúc sư.
Tinh thần học hỏi cao cũng đủ cho bạn thấy được độ chuyên nghiệp trong thiết kế. Mang đến ngôi nhà khá mạnh mẽ và khang trang hơn. Tạo thêm nhiều điểm nhấn riêng mà chúng ta thấy được cuộc sống khá hài hòa nhất cho cuộc sống hạnh phúc của mình.
Nhà luôn là một tổ ấm luôn được xây dựng khá kỹ và chi tiết nhất. Đủ cho cuộc sống gia đình luôn nhấn nhá cho nét đẹp riêng. Ở đây cũng đủ đánh giá mức độ xây dựng trục tiếp trong xây dựng ngôi nhà. Thể hiện được những điểm họa tiết cơ bản nhất cho cuộc sống.



Không gian sống luôn được xây dựng khá chi tiết từ mặt ngoại thất cho đến nội thất ngôi nhà. Chính là những ưu thế mà chủ đầu tư chúng tỏ được tính cách của mình. Với mức độ thẳng thắn thì những kiểu nhà hiện đại luôn là tâm điểm chú ý nhất.
Quan trọng nhất chính là hệ thống công năng phải đủ cho một điểm họa tiết. Để mang đến một ngôi nhà hoàn toàn theo một phong cách hoàn hảo nhất cho cuộc sống chúng ta.
Với ngôi nhà 1 trệt 2 lầu cũng đủ thấy được cuộc sống thoải mái mà gia đình chủ đầu tư mong muốn. Kèm theo đó là cấu trúc ngôi nhà luôn được xây dựng theo một khối hình hiện đại nhất định. Chúng ta cũng tham khảo rõ hơn về mẫu nhà qua mẫu phố cảnh 3D này nhé. Biết đâu đó cũng thêm được nhiều ý tưởng riêng trong ngôi nhà tương lai của bạn.


CÔNG TY TNHH PENCIL HOME
Văn Phòng : 73 Phú Lợi, Phường Phú Lợi, TP Thủ Dầu Một, Tỉnh Bình Dương
Điện thoại: 0973.099.123 - Hotline: 0961.751.752
Email: Pencilhome.art@gmail.com
Website: www.pencilhome.com.vn